A casa do rio

Vidais | Caldas da Rainha

4

4

267mt2

Para obras

Leiria

Caldas da Rainha

Vidais

Matoeira

267

200

3136

G

4

Não

4

Não

Jardim Privado

Perto de Transportes Públicos

142.620 ,00€

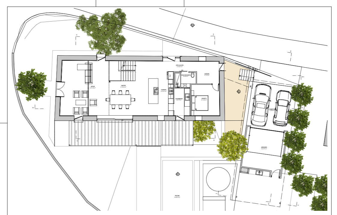
As casas mais especiais são aquelas que não nasceram do óbvio, mas sim da visão, criatividade e de um processo de transformação. Tal como o vinho tem o seu terroir, o projeto desta casa tem como base uma adega com 153m2 de implantação, situada num terreno misto com 3.136m2 que inclui dois riachos e arvoredo. O projeto de arquitetura já aprovado prevê a construção de uma moradia T4 distribuída por dois pisos, em LSF (light steel frame), garagem e um espaço exterior ajardinado com terraço pergolado e uma piscina de 28m2. A área de construção é de 267m2. O enquadramento paisagístico é único, beneficiando de privacidade, orientação solar a nascente e sul e de um espaço de natureza incomparável, do qual pode beneficiar para atividades de lazer e bem-estar, eventos ou para cultivo. O projeto pode ser adaptado na sua forma ou acabamentos e existe estimativa de custo e construtor disponível para a reabilitação com o acompanhamento do arquiteto responsável pela autoria e pelo licenciamento. A Matoeira é, provavelmente, a aldeia mais bonita da região Oeste, abraçada por colinas verdejantes, nas quais estão a ser plantadas espécies como sobreiros, azinheiras e vinhas e onde nascerá em breve um hotel rústico, uma mercearia e padaria biológica e onde já existe um estúdio de yoga e um parque de merendas absolutamente mágico. Situada a apenas 5 minutos do centro de Caldas da Rainha e a 55mn de Lisboa, a 15mn da praia da Foz do Arelho e da Lagoa de Óbidos, a localização é perfeita para quem procura tranquilidade e proximidade com a cidade. A LOBA está disponível para remunerar em 2,5% qualquer mediadora licenciada, com cliente qualificado. Caso o comprador seja atendido pela LOBA, essa percentagem reverte para os Clientes, pois nunca recebemos uma dupla comissão.

Não encontra o que procura?

A loba caça por si!

Pedir mais informações

Quer visitar ou saber mais sobre este imóvel? Escreva-nos!

Enviado com sucesso.

A sua mensagem foi enviada com sucesso, obrigado por nos contactar!

Ok

Escreva-nos

Agende uma conversa com a LOBA e conheça o serviço a compradores mais eficiente e personalizado.

Enviado com sucesso.

A sua mensagem foi enviada com sucesso, obrigado por nos contactar!

Ok

Recomende este imóvel e receba a recompensa em caso de sucesso.

Utilize este formulário para preencher os seus dados e os dados de quem possa estar interessado neste imóvel. Receberá automaticamente um comprovativo deste registo no seu email. Após validação, será criado um smart contract que, em caso de realização do negócio, procederá ao pagamento da recompensa definida.

Eu...

Recomendo este imóvel a…

Imóvel recomendado.

A sua mensagem foi enviada com sucesso, obrigado por recomendar este imóvel!

Ok